16 个回答
声明:本文只讨论世界上第一座 Trump Tower(721-725 5th Ave, New York, NY 10022) 作为房地产项目本身的价值 ,不讨论别的川普大厦,也不讨论大楼中居住的政客和他们的政治立场。
721 Fifth Ave.
aka
Trump Tower (图片来源:纽约时报)
第五大道721号
背后的历史
第五大道作为纽约老牌购物和生活方式的中心,在70年代也面临着来自纽约其他新兴街区的挑战。
担心第五大道的魅力褪去,1971年,纽约颁布特别规划法规,允许开发商在第五大道分区下建设摩天大楼,交换条件是:
"在项目里,靠近街道的楼层要用于零售,且有行人步行街等公用空间;如果上方住宅楼要建的越高,那么下盘的公用空间面积就得越大。"
于是,在中央公园东北角,这座黑色塔楼得以高耸如云,占据约三分之一的街区。商用区域要从第五大道入口进入,Condo 住户从56街入口进入。
川普大厦的公众空间
垂直高度高达 100 英尺的大中亭里,云集了优质商铺和餐厅,比如 Gucci,Landue珠宝,还有特朗普烧烤、商店。商场本身装饰风格也贯彻了 Trump Tower 外表的风格——粉色、褐色的意大利 Brecchi Perniche 大理石、黄铜的或者金箔包裹的五金件、还有无数不在的镜面效果。
是的,其实这是一个可以约 Brunch 或者买一杯星巴克的地方。
居住空间&公共设施
从56街的入口进入住宅楼层大堂,风格可就明显不一样了。
深色的大理石加天鹅绒家具,在刻意调低的灯光下,据说可以给住在其中的住户一种回到港湾的安全感。
健身房可以看到中央公园,大楼的服务人员也都是一流的。
房型和价格
由于建成已经36年,Trump Tower 内的房子很多都已经不是原来的装修,甚至不是原来的户型了——
在美国, Condo 业主对于自己的公寓有相当大的权力,只要手续到位,可以大刀阔斧地改动原有装潢,甚至合并相邻的上下左右几个单元
这也造成了 Trump Tower 内的房子各有各的个性,也基本独一无二。
截止2019年3月10日,Trump Tower 的售价和租价如下:
一居室
的售价约 $1,650,000 起,租金 $6,500 起,
面积从 97 平方米起
二居室
的售价约 $2,995,000 起,租金 $8,531起,
面积从 148 平方米起
三居室
的售价约 $4,750,000 起,
面积从 238 平方米起
先来看一套比较接近原始装修风格的一居室
户型的设计很适合在家办公、会客、开趴体——关上两道门,主要的起居空间就成为了一个四方的独立空间,还设置了 0.5 bathroom,也就是无法沐浴的客用洗手间。
再看将一套 G 户型和一套 H 户型打通后的3居室
打通两户之后,带来的就是238平方米的可用空间,还有Oversize 的起居室。这样的起居室,不如其中俯瞰上东、中城还有中央公园,只能用炫目来描述。
门厅拥有大理石地板,适合作为一个 Galley 来展示艺术藏品。
再看一套经过大改造的三居室
在51层这个高度上,这样的三居室据说是大楼里最好的三居室户型。
可以看出来,这户之前的主人还是看到了可以改进的地方,并且喜欢那种住 House 的宽敞的感觉——去掉了不必要的次卧和早餐餐厅,还有许多角落里的壁橱,把所有的一起打成直通型的模样。所有的浴室都得到了扩建和升级。
视觉上,用大量的实木元素,还有浅色大理石,代替了大楼本来的高光镜面和原配地板。纯白和胡桃色相结合,营造出了一种成熟稳重的质感。
当然,要价不菲——1250万美元。
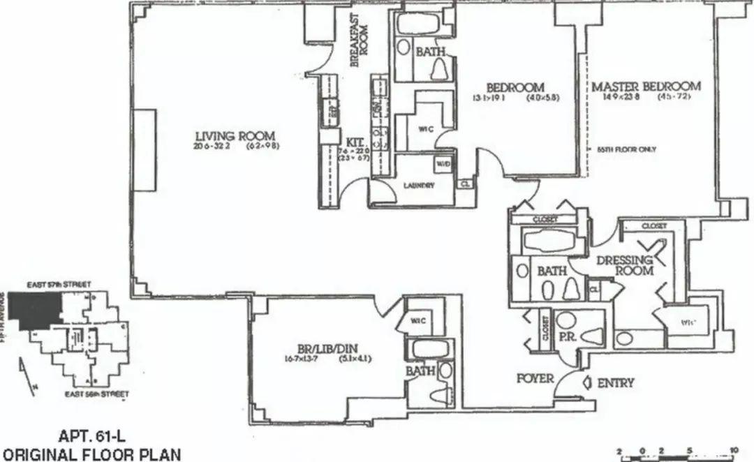
下图第一张为原始户型图,第二张为最新户型图。
最后看一套出租的房源
这也是一套 Corner Unit,房东显然也不喜欢川普大厦本身的黑金、镜面的搭配,换上了浅色的地板、墙面还有设计感十足的灯具家具。
起居室+餐厅区域面积高达96平方木,主卧拥有步入式衣柜,次卧目前是育婴室,适合有小孩的家庭。
彩蛋:最安全的豪华公寓
由于 Trump 本人的家就在这栋楼的顶层,根据联邦法律,所以这栋楼作为总统私人官邸,也就成为了全纽约 “最安全” 的大楼。
在平日里,大楼住户会面临来自特勤部门的 “机场级别” 的安检,重要日期内更会有载重砂石车把大楼门口给围住。
从 TRUMP TOWER 向西看 57 街——一条摩天大楼野蛮生长的富豪街
和 57 街上那些高耸入云的摩天大楼相比,Trump Tower 已经显出老态——毕竟它作为纽约最高玻璃大楼的记录,已经是30多年前的事情了。
层高、设施还有外立面风格上,别说比不过 One 57、111 West 57 这样的新人,甚至一些标准的纽约当代居民楼,都能虐他千百遍。
但是,作为开起纽约地产市场新气象的的楼盘,加上第五大道 Tiffany 楼上钻石位置的加持,这第一座川普大厦还是成功的。看数据,从18年二手房买卖记录来看,对比同时期建造的两座典型豪华 Condo——坐落在 MoMA 上方的 Museum Tower,和 Metropolitan Tower,它还是能卖出更贵的每平方英尺均价。
不管要不要买,至少逛第五大道的时候,这里还是值得一看的